Verbouw en aanbouw woning Nieuwerkerk

Aanbouw: 80 m2; verbouw: 106 m2

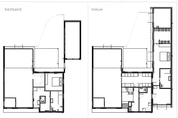
In Nieuwerkerk is een bestaande vrijstaande woning aangepast aan de nieuwe wensen van de bewoners en voorzien van een volledig gelijkvloers woonprogramma. De garage heeft plaats gemaakt voor 80 m2 uitbreiding met een nieuwe badkamer, slaapkamer met inloopkast en twee bergingen. Naast de aanbouw is de woning intern ook compleet verbouwd waarbij de indeling ruimer is geworden. De hal is voorzien van veel licht middels een vide en een nieuwe trap, de keuken is twee keer zo groot geworden en de voormalige badkamer is een ruime bijkeuken geworden. Boven zijn de slaapkamers en overloop vernieuwd. Naast de bouwkundige verbouw is de woning in z'n geheel voorzien van nieuwe installaties inclusief vloerverwarming. Aansluitend op de materialen van de bestaande woning zijn onderhoudsvrije kunststof kozijnen en boeidelen toegepast.

Plattegrond bestaand en nieuw